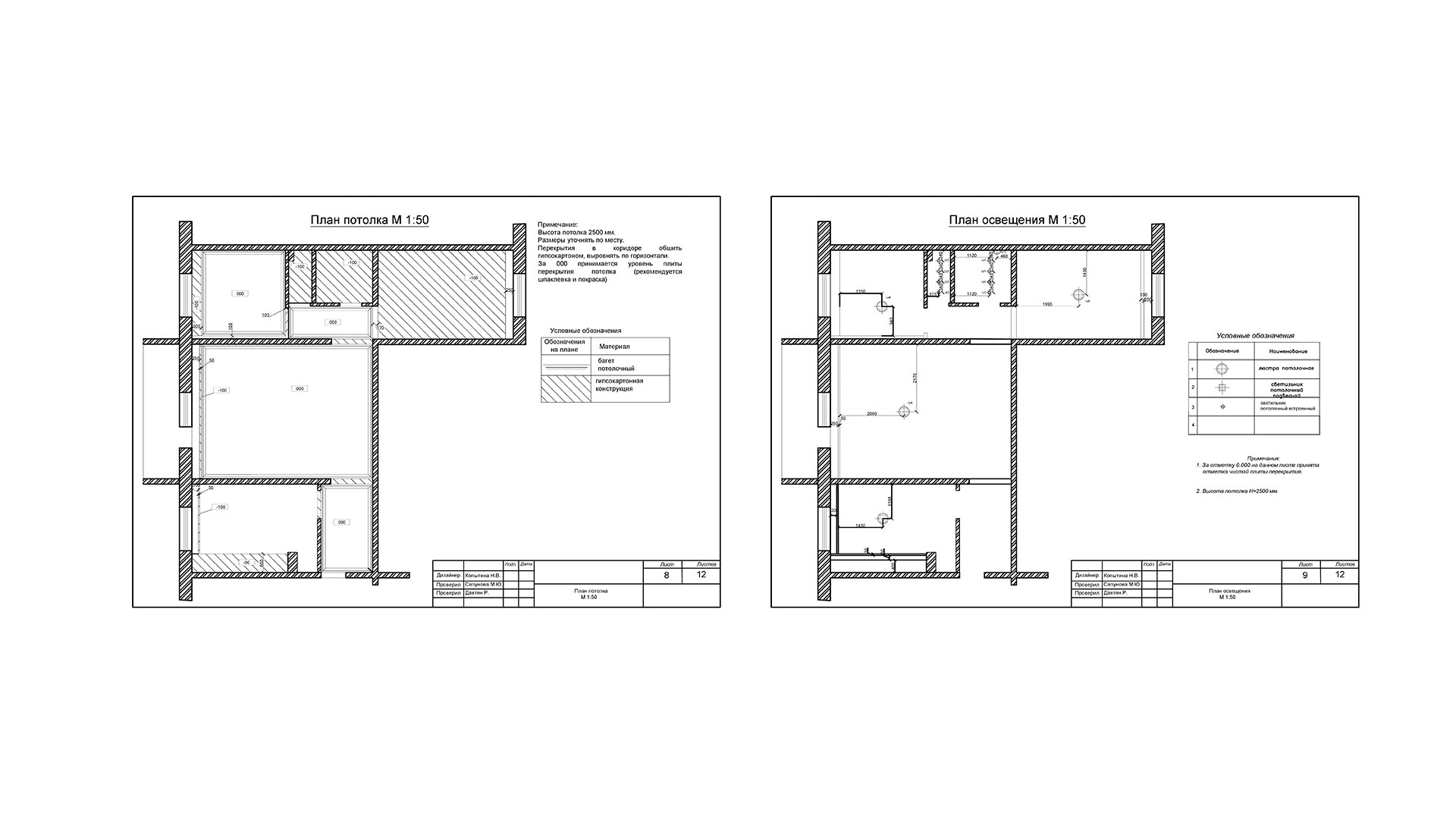
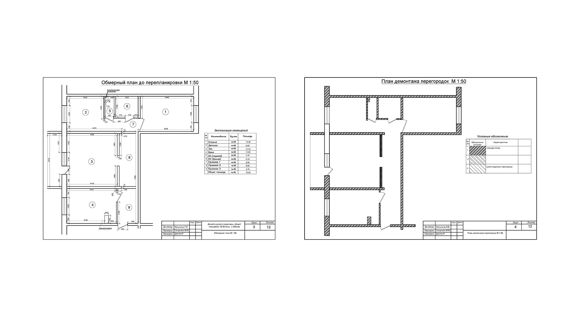
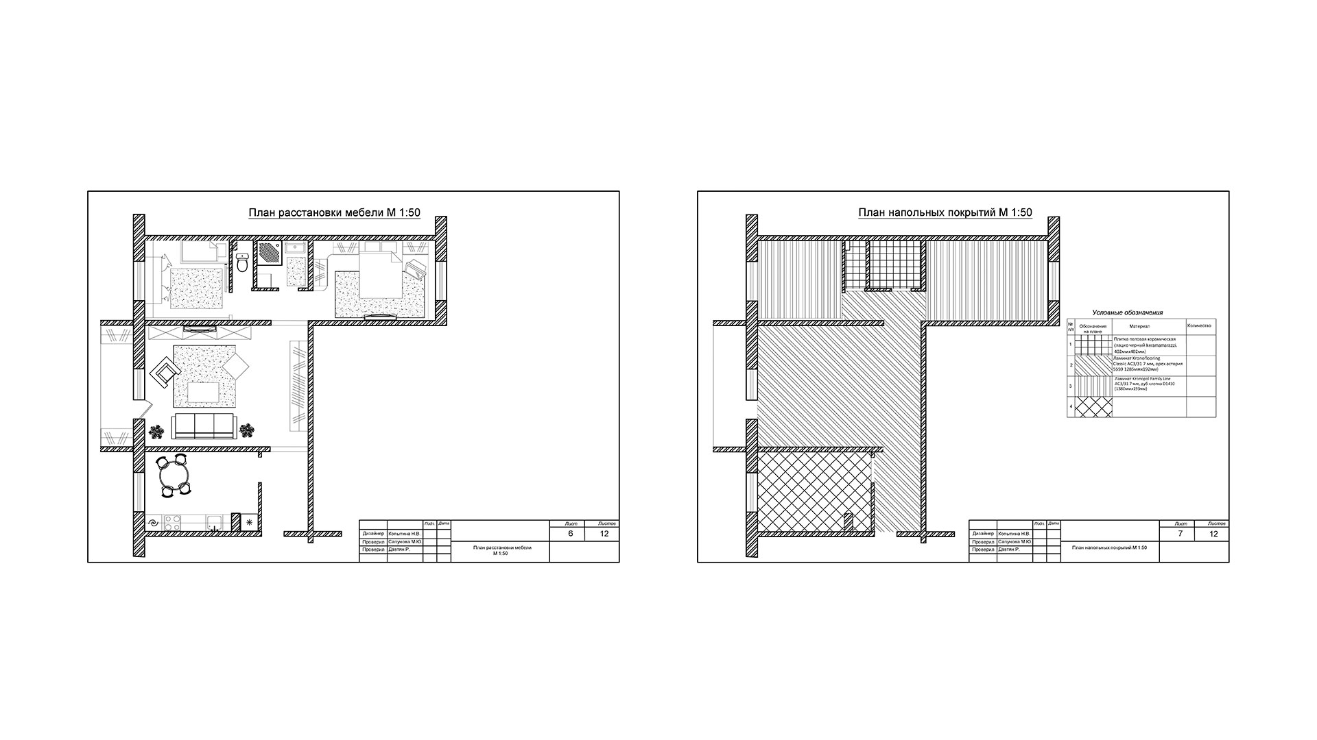
Чертежи

Чертежи выполнены в Autocad и Kitchen Draw

Показать полностью
Стили
0 Лайков1
747 Просмотров
29 Июль 2018, 22:16
Комментарии 0
Упс

Только пользователи с премиум аккаунтом могут
отправлять сообщения заказчику